Vorgefertigtes Tiny House 6,8 m x 2,5 m
Ideal für alle, die einen minimalistischen und anpassungsfähigen Lebensstil suchen
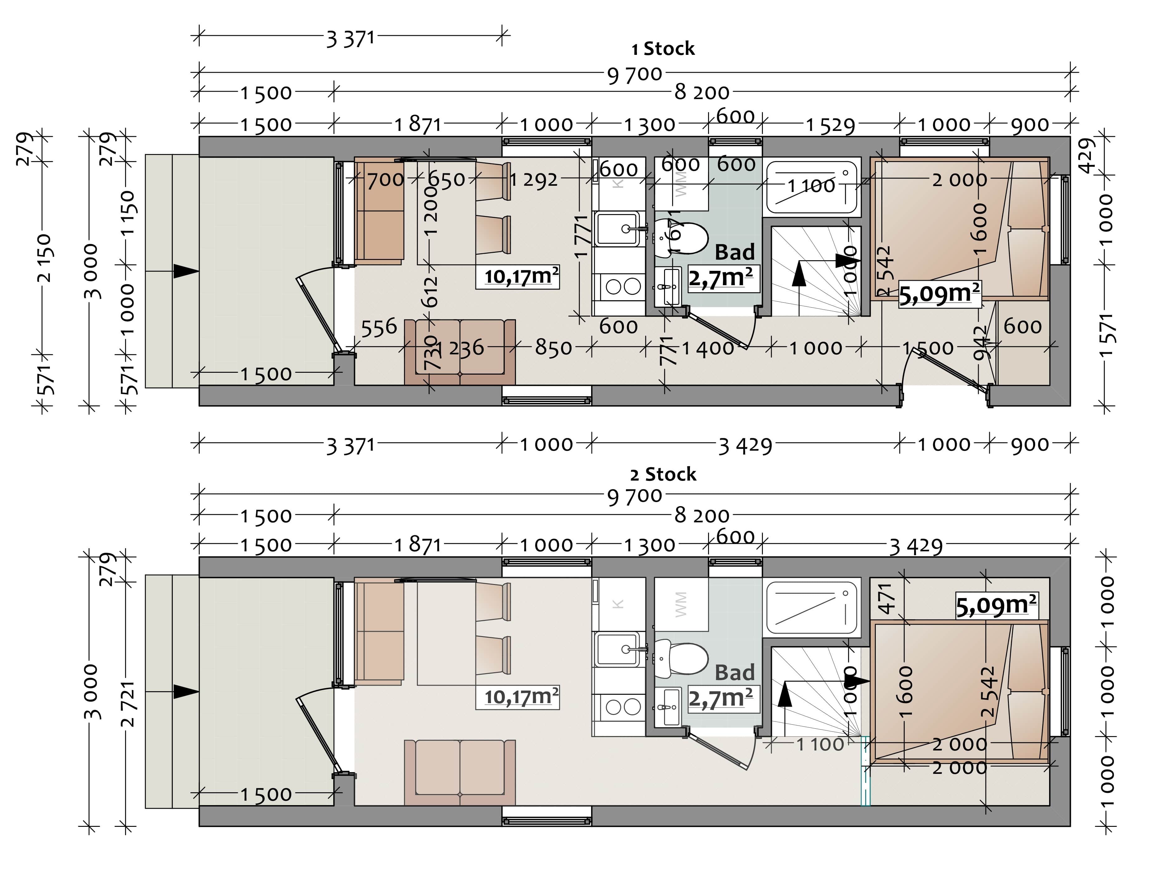
- Nettofläche: 23 m²
- Wohnraum, Bad, Küche
- Heizung / Kühlung: Klima
- Bad voll ausgestattet
Fertighaus – Refugio
Refugio Simetrik ist die ideale Lösung für kompaktes und komfortables Wohnen. Dieses moderne Modulhaus vereint stilvolles Design, Funktionalität und Umweltfreundlichkeit. Die Konstruktion ist auf Langlebigkeit, Energieeffizienz und Komfort ausgelegt, was es zu einer ausgezeichneten Wahl für Wochenendhaus, Tinyhaus, Vermietung oder als Hotelzimmer macht.
Haupteigenschaften:
- Wohnfläche: 23,00 m²
- Außenmaße: 9,7 x 3 m
- Ausstattung: Vollständig ausgestattetes Badezimmer.
- Produktions- und Lieferzeit: 6 Monate, bezugsfertig.
Grundriss:
- Wohnzimmer: Ein geräumiger Bereich zum Entspannen mit großen Fenstern, die das Haus mit natürlichem Licht durchfluten und eine gemütliche Atmosphäre schaffen.
- Schlafzimmer (5,09 m²): Ein gemütlicher Raum im Obergeschoss, der als Hauptschlafzimmer, Gästezimmer, Kinderzimmer oder Ankleidezimmer genutzt werden kann. Die durchdachte Raumaufteilung sorgt für maximale Nutzung des Platzes.
- Badezimmer: Ausgestattet mit moderner Sanitärtechnik, einer Duschkabine, einem beleuchteten Spiegel und einem Boiler für höchsten Komfort.
Vorteile von Refugio Simetrik:
- Umweltfreundlichkeit: Verwendet sichere und nachhaltige Materialien, die modernen ökologischen Standards entsprechen.
- Energieeffizienz: Hochwertige Isolierung und durchdachte Konstruktion sorgen für einen minimalen Energieverbrauch.
- Flexibilität: Geeignet für verschiedene Klimazonen.
- Ästhetik: Elegantes Design mit natürlichen Materialien.
Design und Fassade:
Das Haus ist im modernen Stil mit eleganter Fassadengestaltung ausgeführt.
- Fassade: Aus Naturholz, beschichtet mit wasserabweisendem Lack, der die Konstruktion schützt und ihre Ästhetik bewahrt.
- Dach: Metallfalz sorgt für Langlebigkeit und zuverlässigen Schutz vor schlechtem Wetter.
- Panoramafenster: Harmonieren perfekt mit der Architektur, durchfluten den Raum mit Licht und bieten einen herrlichen Blick auf die Natur.
- Veranda: Der perfekte Ort, um im Freien zu entspannen und die Umgebung zu genießen.
Refugio Simetrik kombiniert modernes Design und Gemütlichkeit und bietet die perfekte Balance zwischen Ästhetik und Funktionalität. Es ist eine universelle Lösung für Freizeit, Vermietung oder kompaktes Wohnen und ideal für die Installation auf Naturgrundstücken. Das Haus ist sofort nach der Montage bezugsfertig.
1.jpg)