Vorgefertigtes Tiny House 6,8 m x 2,5 m
Ideal für alle, die einen minimalistischen und anpassungsfähigen Lebensstil suchen
- Nettofläche: 17.01 m²
- Wohnraum, Bad, Küche
- Heizung / Kühlung: Klima
- Bad voll ausgestattet
- Küche: Küche voll ausgestattet opt.
Verbindet minimalistisches Wohnen mit Mobilität. Hergestellt in einer Fabrik für Präzision, bietet es einen kompakten, nachhaltigen Lebensstil.
Tragbar und vielseitig bietet es Freiheit und Einfachheit, ohne Kompromisse beim Komfort einzugehen, ideal für alle, die einen minimalistischen und anpassungsfähigen Lebensstil suchen.
Gebäudefläche: 17 m²
Nutzfläche: 11,5/16,8m²
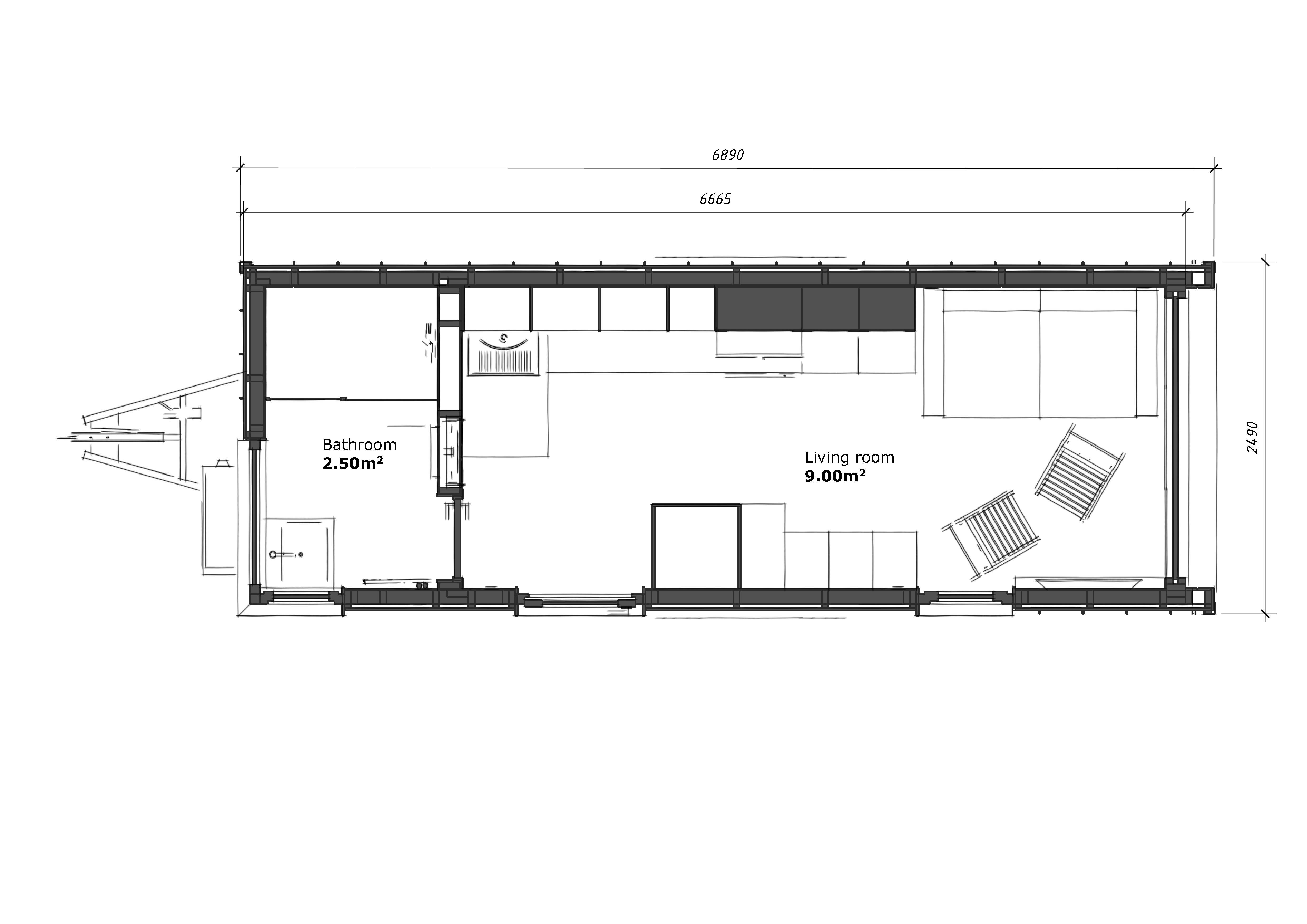
Gebäudeplan
Das vorgefertigte Tiny House auf Rädern besticht durch einen effizienten Grundriss mit multifunktionalem Wohnbereich, kompakter Küchenzeile und geschickt integriertem Badezimmer. Der über eine Treppe erreichbare Dachboden bietet einen gemütlichen Schlafplatz, ohne auf die Offenheit darunter zu verzichten. Durchdachtes Design und Tragbarkeit machen es zur idealen Wahl für alle, die einen minimalistischen und anpassungsfähigen Lebensstil suchen.
Außenmaße (HxBxT): 6,89 x 2,49 x 3,95 m.
Gebäudefläche: 17 m²
Nutzfläche: 11,5/16,8m²
Außenmaße (HxBxT): 6,89 x 2,49 x 3,95 m.
Gebäudefläche: 17 m²
Nutzfläche: 11,5/16,8m²
-min.jpg)