Ihr modernes und vielseitiges Modulhaus für jeden Bedarf
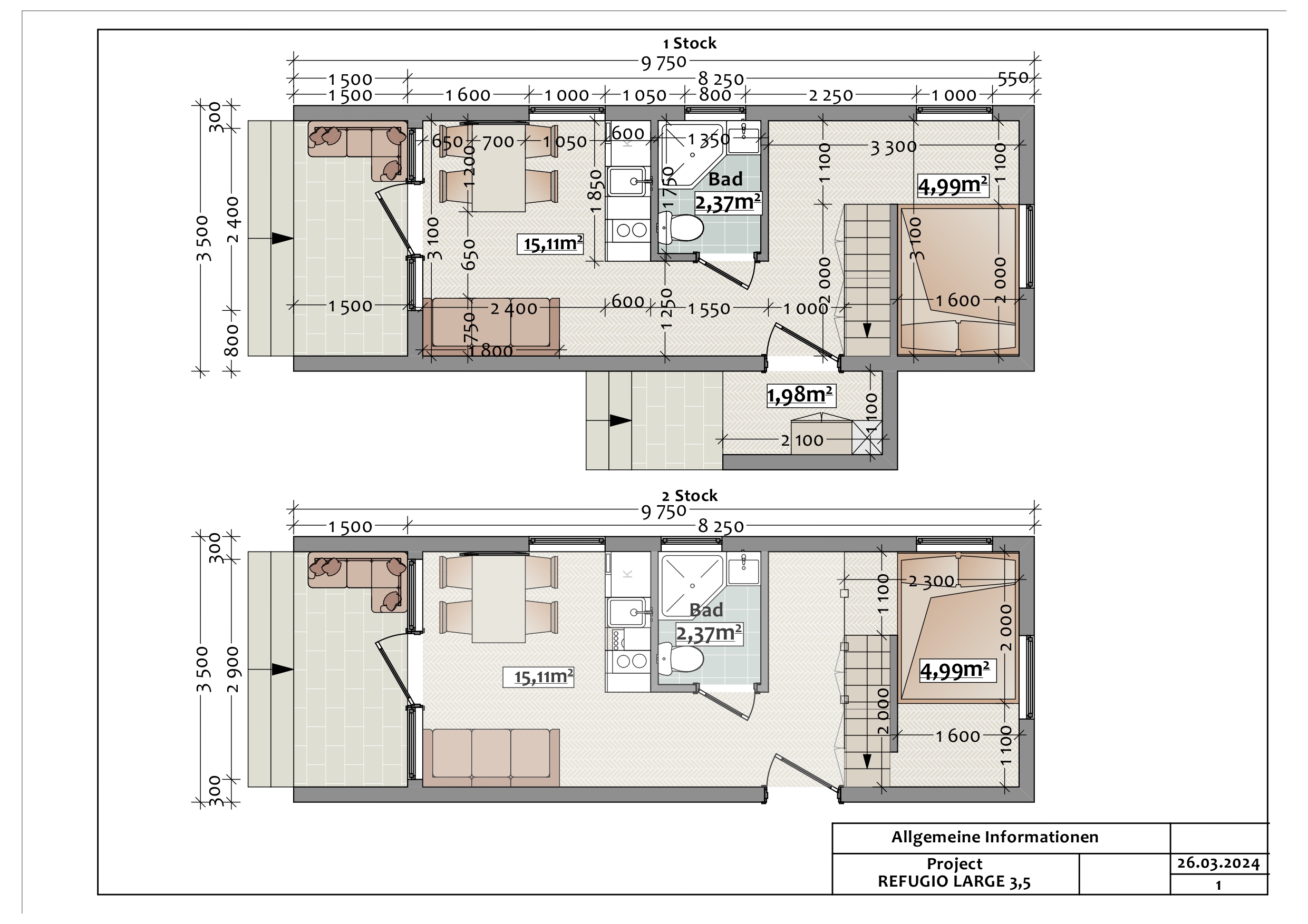
- Nettofläche: 28.29 m²
- Wohnraum, Bad, WC, Küche
- Heizung / Kühlung: Klima
- Bad voll ausgestattet
Refugio Large 3.5 – ein modernes und kompaktes Modulhaus, das sich ideal für Erholung, Arbeit oder dauerhaftes Wohnen eignet. Dieses Haus vereint Funktionalität und Gemütlichkeit und schafft so einen komfortablen Lebensraum.
Hauptmerkmale:
- Geräumige Raumaufteilung:
- Küchenbereich: Praktisch gestaltete Küche mit Essbereich und Sofa, das auch als zusätzliche Ruhezone genutzt werden kann.
- Badezimmer: Modernes Bad mit durchdachter Ergonomie (2,37 m²).
- Loft-Bereich: Gemütlicher Schlafbereich auf der oberen Ebene, der Privatsphäre bietet.
- Bereich unter dem Loft: Vielseitig nutzbarer Raum, der als zweiter Schlafbereich oder als Arbeitszimmer eingerichtet werden kann.
- Panoramaverglasung: Große Fenster durchfluten das Haus mit natürlichem Licht und bieten einen atemberaubenden Blick auf die umliegende Natur.
- Kompakte Größe: Die Gesamtfläche des Hauses ermöglicht eine effiziente Raumnutzung, ohne auf Gemütlichkeit zu verzichten.
Design:
Das Refugio Large 3.5 ist in einem modernen Stil gestaltet, mit der Verwendung von natürlichen Holzmaterialien und Panoramaverglasung. Das asymmetrische Dach und die minimalistische Fassade verleihen dem Haus ein einzigartiges Erscheinungsbild, das sich harmonisch in die natürliche Umgebung einfügt.
Vorteile:
- Vielseitigkeit: Anpassung des Innenraums an Ihre individuellen Bedürfnisse.
- Umweltfreundlichkeit: Verwendung natürlicher Materialien.
- Bereit zur Installation: Das Haus kann ohne zusätzliche Aufwände auf jedem Gelände aufgestellt werden.
Das Refugio Large 3.5 ist die perfekte Wahl für alle, die Komfort, modernen Stil und Naturverbundenheit schätzen.
Schaffen Sie Ihre gemütliche Wohlfühloase mit dem Refugio Large 3.5 – Ihrem stilvollen und funktionalen Traumhaus!
.jpg)