• Nettofläche: 121.62
  • Wohnraum, Bad, WC, Küche
  • Heizung / Kühlung: Klima
  • Bad voll ausgestattet

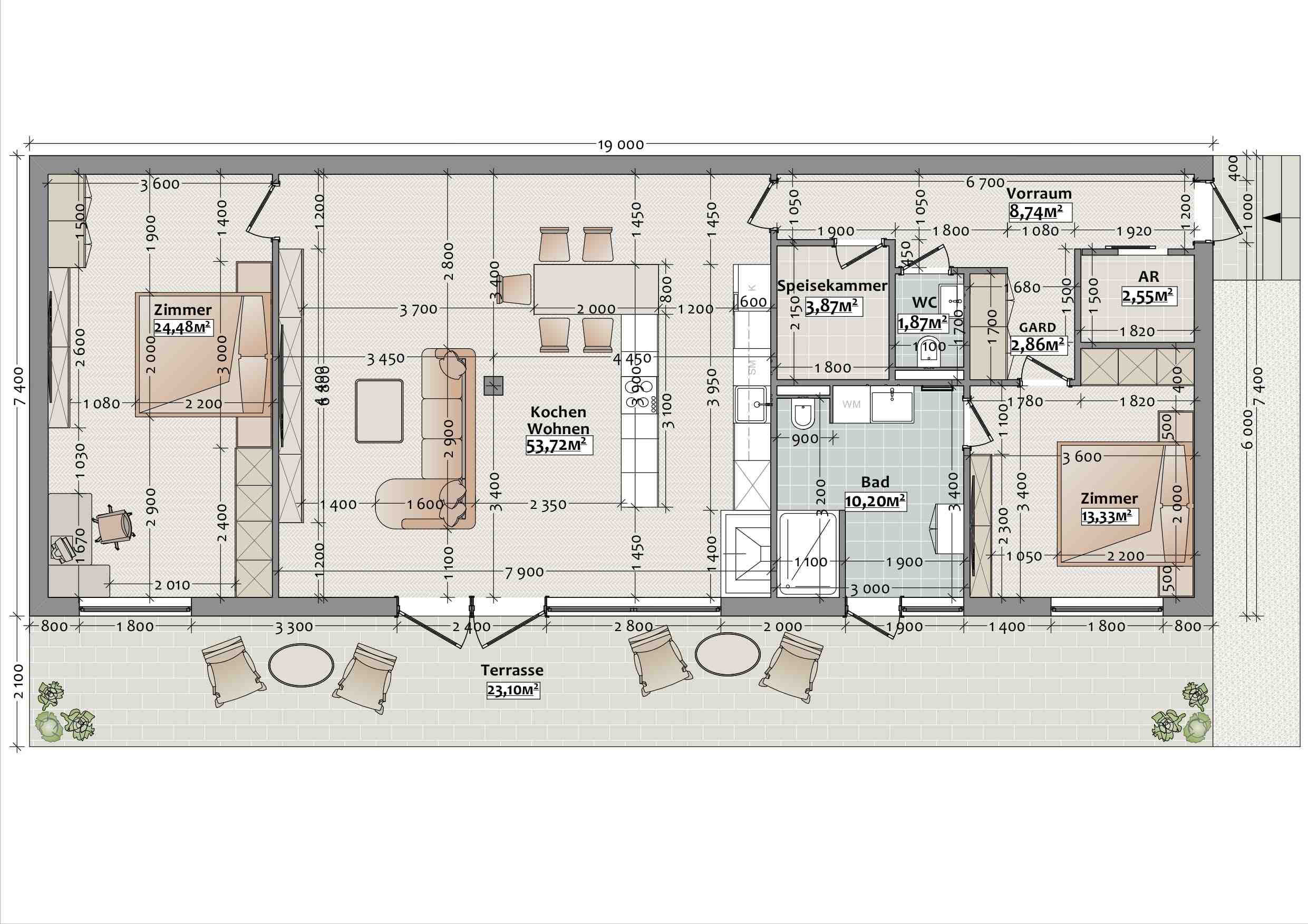
Modulares Haus Elara 120 Gray 19 m x 7,4 m
Ideal für alle, die großzügigen Wohnraum und eine harmonische Verbindung von  suchen.

PREIS AB: 259950
Flachdach

Geräumiges und stilvolles Haus für komfortables Wohnen

Willkommen im Elara 120 Gray – die perfekte Kombination aus modernem Design, Funktionalität und hoher Qualität. Dieses Haus wurde entworfen, um ein wahres Sinnbild für Gemütlichkeit und Stil zu sein und die Bedürfnisse moderner Familien zu erfüllen.

Hauptmerkmale:

  • Fläche: 121,62 m² Wohnfläche
  • Anzahl der Zimmer: 3, darunter ein geräumiges Wohnzimmer und 2 Schlafzimmer
  • Terrasse: Ein gemütlicher Bereich zum Entspannen und Verbringen von Zeit mit der Familie
  • Bebauter Bereich: 140,6 m²

Warum sollten Sie sich für Elara 120 Gray entscheiden?

  1. Moderne Architektur: Das Haus ist in einem minimalistischen Stil mit eleganter grauer Fassadengestaltung gehalten. Große Panoramafenster durchfluten die Räume mit natürlichem Licht.
  2. Geräumiges Wohn- und Esszimmer: Der Mittelpunkt des Hauses, ideal für Kommunikation und Familientreffen. Die offene Küche sorgt für zusätzliche Bequemlichkeit und Freiraum.
  3. Zwei Schlafzimmer: Perfekte Räume zum Entspannen, die individuell angepasst werden können, sei es als Büro oder Kinderzimmer.
  4. Ergonomie: Alle Bereiche sind so konzipiert, dass der Raum optimal genutzt wird und maximaler Komfort für die Bewohner gewährleistet ist.

Details und Materialien:

  • Hochwertige Laminatböden und Wände in hellen Tönen schaffen eine gemütliche Atmosphäre.
  • Das Badezimmer ist mit moderner Sanitärtechnik führender Marken (Geberit, Duravit, Grohe) ausgestattet.
  • Außenmaterialien aus natürlichen und modernen Werkstoffen machen das Haus umweltfreundlich und energieeffizient.

Inspirierende Räume:
Die Terrasse und der Innenhof bieten die Möglichkeit, die Natur zu genießen, zu entspannen oder Zeit mit den Liebsten an der frischen Luft zu verbringen.

Elara 120 Gray – Ihr neues Lebensniveau. Komfort, Stil und Qualität in jedem Quadratmeter.

HAUSKALKULATION

0

0

0

 

PLAN

Elara 120 Gray

WA