Kompaktes Design für stilvolles und komfortables Wohnen
- Nettofläche: 45.74 m²
- Wohnraum, Bad, WC, Küche
- Heizung / Kühlung: Klima
- Bad voll ausgestattet
- Küche: Optional Küche voll ausgestattet & Möbliert
Chalet 45 – die ökologische und stilvolle Lösung für kompaktes und komfortables Wohnen
Chalet 45 ist ein modernes Tiny House, das mit hoher Funktionalität und Ästhetik überzeugt. Dank seiner kompakten Größe ist es die perfekte Wahl als Ferienhaus, Rückzugsort oder für ein komfortables Leben auf kleiner Fläche.
Haupteigenschaften:
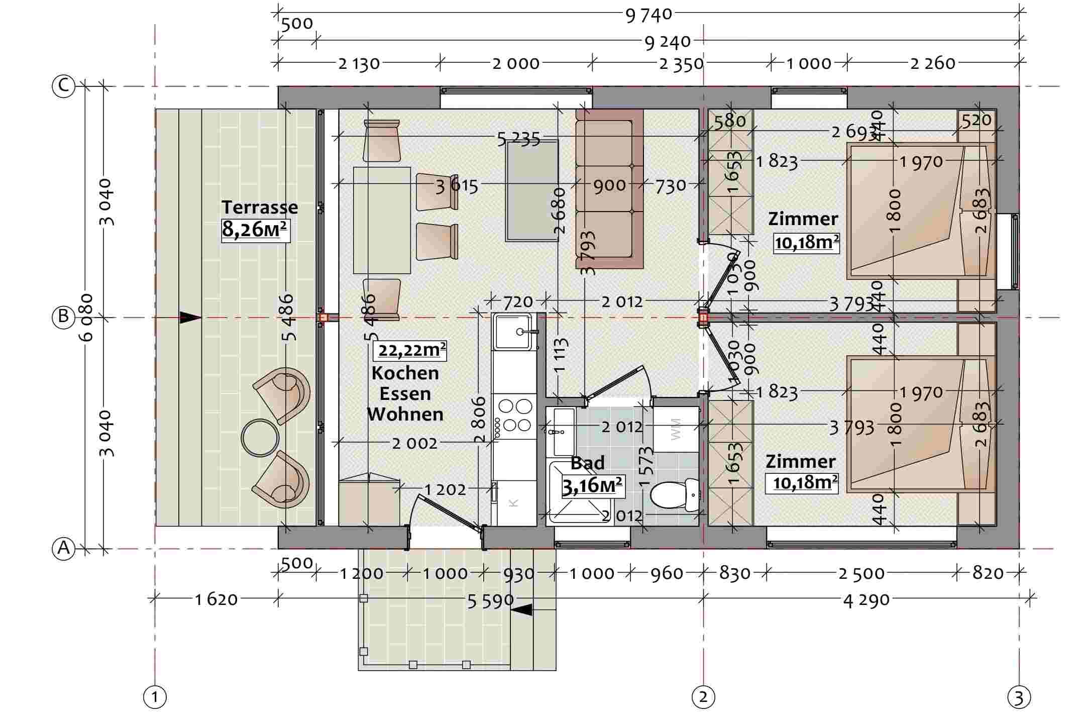
Fläche und Grundriss:
Mit einer Gesamtfläche von 44,73 m² und einer gemütlichen Veranda von 8,26 m² eignet sich das Chalet 45 ideal für Paare oder kleine Familien. Die Raumaufteilung umfasst:
- Ein geräumiges Wohnzimmer mit offener Küche;
- Zwei Schlafzimmer;
- Ein voll ausgestattetes Badezimmer;
- Eine Terrasse, die zum Entspannen im Freien einlädt.
Materialien und Konstruktion:
Das Haus wird mit modernsten Technologien und umweltfreundlichen Materialien gebaut:
- Holzrahmenkonstruktion mit Mineralwolleisolierung (200 mm);
- Fassadenoptionen: Naturholz oder Anthrazit;
- Dreifachverglaste Salamander-Fenster mit hervorragender Wärmedämmung (U-Wert 0,14 W/m²K).
Heizung und Energieeffizienz:
Das Haus ist mit einer Klimaanlage (3-Split-System) ausgestattet, die sowohl Heizen als auch Kühlen ermöglicht und somit das ganze Jahr über für Komfort sorgt.
Design und Komfort:
Innenraum:
Helle und großzügige Räume mit großen Fenstern, die viel Tageslicht hereinlassen. Natürliche Farben und dekorative Elemente sorgen für eine moderne und gemütliche Atmosphäre.
Küche:
Die Küche ist komplett ausgestattet mit moderner Technik, darunter ein Induktionskochfeld, eine Dunstabzugshaube und ein Einbaukühlschrank. Die MDF-Schränke und die Arbeitsplatte aus Naturholz bieten Funktionalität und Stil.
Badezimmer:
Das Badezimmer ist mit Geberit- und Grohe-Sanitäranlagen, Keramikfliesen an Wänden und Boden sowie einem 60-Liter-Wasserboiler ausgestattet, was es funktional und komfortabel macht.
Besonderheiten:
- Schnelle Bauzeit: Fertigstellung und bezugsbereit in nur 4 Monaten;
- Energieeffizienz: Hervorragende Dämmwerte sorgen für geringe Heiz- und Kühlkosten;
- Vielseitigkeit: Geeignet für dauerhaften Wohnsitz oder saisonale Nutzung.
Chalet 45 ist ein praktisches und stilvolles Tiny House, das kompakte Größe mit modernem Komfort perfekt kombiniert.
